Slovenija

V malem slovenskem mestu bodo zgradili 22 milijonov vredno nakupovalno središče

Brežice Profimedia
V trgovskem centru bo 17 trgovin.

Na vzhodnem delu Brežic, ob eni glavnih mestnih vpadnic, Cesti svobode, poteka gradnja novega trgovskega središča s spremljajočimi poslovnimi in storitvenimi dejavnostmi. Nastaja na doslej nepozidanem, travnatem območju severno od obstoječega Eurospina, nasproti gasilske postaje in nekdanje policijske postaje.

Investitor večje gradbene parcele je družba MA Rho, investicijska družba iz Ljubljane. Lastnik in direktor družbe je Andreas Messner iz Celovca.

Trgovski center naj bi bil zgrajen do konca leta, te trgovine boste našli v njem

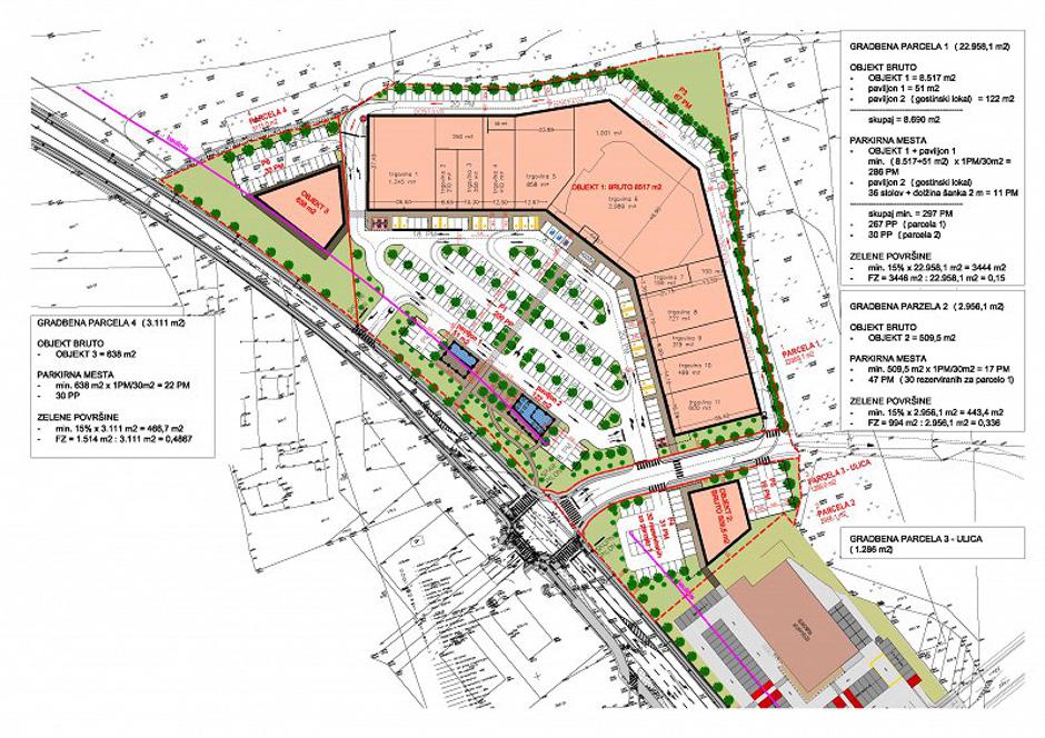
Po informacijah občine Brežice bo na približno 28.100 kvadratnih metrov velikem zemljišču zrasel trgovski center s približno 9700 kvadratnimi metri najemnih površin. Vrednost naložbe je ocenjena na približno 22 milijonov evrov, center pa naj bi bil po napovedih zgrajen do konca leta, poroča Dolenjski list.

Po navedbah občine naj bi bilo v novem trgovskem središču 17 slovenskih in mednarodnih najemnikov, ki imajo sklenjene dolgoročne najemne pogodbe. Ponudba bo obsegala trgovine s prehrano, tekstilom, obutvijo, mešanim blagom in izdelki za male živali ter drogerijo, papirnico, galanterijo, ponudnika telefonije, zlatarno in gostinski lokal. Med najemniki bo tudi Spar Slovenija, so za Dolenjski list potrdili v podjetju.

Kompleks bo sestavljen iz glavne stavbe z večjim nadstreškom ter dveh paviljonov. V enem od paviljonov je predviden gostinski lokal s pokrito teraso. Obiskovalcem bosta na voljo dva uvoza in dva izvoza ter večje parkirišče, dostava blaga pa bo urejena za objektom.

Trgovsko središče namesto travnika

Območje, ki ga ureja občinski podrobni prostorski načrt, obsega nekaj več kot tri hektarje. Razdeljeno je na dve gradbeni parceli. Na manjši, severni parceli je predviden poslovno-trgovski objekt, imenovan objekt 3, medtem ko na večji parceli že nastaja osrednji del trgovskega kompleksa. Tam sta načrtovana večji trgovski objekt 1 z dvema paviljonoma in javno ploščadjo ob Cesti svobode ter manjši trgovski objekt 2 na južnem delu območja.

Trgovski center Brežice | Avtor: Občina Brežice Občina Brežice

Poseben poudarek naj bi bil namenjen zunanji ureditvi. Novo središče naj bi bilo po zasnovi prijaznejše od številnih podobnih trgovskih kompleksov, saj bo ob Cesti svobode urejen javni zunanji prostor z ulično ponudbo in ozelenjeno ploščadjo, zasnovano kot manjši trg. V zelenem pasu so predvidena tudi drevesa, ki naj bi ploščad vizualno ločila od prometne ceste. Kot poroča Dolenjski list, je bila prav zelena ureditev eden zahtevnejših delov usklajevanj z investitorjem, saj je občina vztrajala, da se se prostor nameni javnemu in zelenemu prostoru namesto parkirišč ali trgovin, kar bi bilo za investitorja bolj praktično.

Občina Brežice je v okviru urejanja celotnega območja OPPN z dcema investitorjema sklenila pogodbo, ki določa tudi obseg in vrsto komunalne opreme, ki jo financirata investitorja. Med predvidenimi ureditvami so večnamenska pot za kolesarje in pešce, cestna razsvetljava v dolžini 350 metrov ob Cesti svobode od Eurospina do krožišča Črnc, 102 metra dostopne ceste s pločnikom, kolesarsko stezo in javno razsvetljavo, 180 metrov vodovoda, cestna priključka za območje OPPN ter elektro- in telekomunikacijsko omrežje. Drugi investitor na severnem delu območja, kjer je predviden objekt 3, že gradi komunalno opremo, načrti za sam objekt pa so še v pripravi, za Dolenjski list pojasnjujejo na občini. Dostopno cesto s pločnikom, kolesarsko stezo, cestno razsvetljavo in vodovodom bo po končani gradnji prevzela občina.

dezurni@styria-media.si

Komentarjev 2
  • Avatar karjola
    karjola 11:03 24.april 2026.

    Trgovsko sredisce? Ma kaj ste bolani? Proizvodnjo je treba postaviti

  • munja 10:54 24.april 2026.

    Spet nakupovalno središče, pa kaj jih še ni dovolj??????????????????? Zakaj ne zgradijo stanovanj, ki jih vedno bolj primanjkuje???????????????