Avto
12092 ogledov

Kako od znotraj izgleda 30-milijonska Darsova kocka? Bili smo v njej ...

Dars, Tiskovna konferenca Darsove uprave predstavitev rezultatov in dela
1/8
Andrej Leban
Darsova nova poslovna stavba ob ljubljanski obvoznici je arhitekturno zelo posebna. Zakaj, smo preverili ob njenem prvem obisku.

Uprava Darsa se je pred kratkim s ključnimi službami vred preselila v povsem novo stavbo ob ljubljanski obvoznici. Doslej je namreč Dars v ta namen najemal prostore v stolpnici v središču Ljubljane, ki pa so bili že močno dotrajani in neustrezni. Poleg tega je Dars za razne oddelke najemal prostore še na drugih lokacijah.

Tako je že pred veliko leti nastala ideja o osrednji stavbi na Griču ob zahodni ljubljanski obvoznici, kjer ima Dars že vzdrževalno bazo. Za stavbo je bilo predvideno zemljišče, ki ga je uporabljal bivši gradbinec SCT.

In prav to dejstvo se je izkazalo za skrito past. Kot v veliko primerih tovrstnih gradenj namreč tudi tokrat ni šlo brez kopice zapletov pri gradnji, ki jo izvaja podjetje SGP.

Dars, Tiskovna konferenca Darsove uprave predstavitev rezultatov in dela | Avtor: Andrej Leban Andrej Leban

Cena zaradi kontaminacije šinila v nebo

Namesto načrtovanih 20 milijonov evrov bo dva aneksa kasneje nova stavba stala okoli 28 milijonov evrov. Na projekt meče čudno luč meče tudi dejstvo, da je Darsov vodja gradnje arhitekt Brane Ribič, sicer v Darsu že od 2015 zaposlen kot vodja projektov.

Njegov brat Andrej Ribič pa je od lanske jeseni predsednik uprave Darsa. Andrej Ribič je bil sicer v času Janševe vlade leta 2021 razrešen z mesta dolgoletnega direktorja Elektra Ljubljane, leta 2022 pod Golobovo vlado pa imenovan v nadzorni svet Darsa. 

Vodja gradnje Brane Ribič je ob nedavni prvi novinarski konferenci uprave Darsa ob predstavitvi načrtov za leto 2025 zbrane popeljal po stavbi in pojasnil njene posebnosti. 

Dars stavba na Griču | Avtor: Dars Dars

Gradnja stavbe v obliki kocke, kot so si jo na javnem natečaju zamislili arhitekti iz studia Abiro, se je začela leta 2022, a kmalu naletela na težave. Pri kopanju gradbene jame se je izkazalo, da so bile prvotne geološke raziskave neustrezne, saj so pri kopanju naleteli na kontaminirano zemljino.

Gre za posledico delovanja propadlega SCT, ki je zemljišče očitno uporabljal za odlagališče nevarnih odpadkov. Prav izkop in odvoz onesnažene zemljine v Avstrijo za ustrezno predelavo je močno povečalo stroške, opozarja današnja uprava.

Poleg tega je gradnja potekala v neugodnem času, ko so cene materialov, dela in energentov zaradi pandemije covida in sledeče ukrajinske krize švignile v nebo v primerjavi z začetnimi napovedmi.

Dars stavba na Griču | Avtor: Dars Dars

Votla kocka z inteligentno zasnovo prostorov in zračenjem 

Pri gradnji so upoštevali princip preprostega in uporabnega dizajna, večina uporabljenih materialov sestavljajo kamen, beton in les.

Nosilna železobetonska in jeklena konstrukcija je izvedena tako, da zagotavlja dolgotrajnost stavbe, medtem ko so podporne konstrukcije z materiali vred (predelne stene, spuščeni stropi, tlaki ...) že prilagojene za verjetne prenove in bodo ob morebitnih spremembah razporeditve prostorov z minimalnimi prilagoditvami.

Dars, Tiskovna konferenca Darsove uprave predstavitev rezultatov in dela | Avtor: Andrej Leban Andrej Leban

Poudarek so dali na energetski učinkovitosti, zato je že sama zasnova stavbe takšna, da v veliki meri samoregulira notranjo temperaturo. Na primer del stavbe, ki je obrnjen na sončno stran, ima na tej strani podaljšano konstrukcijo kovinskih profilov, kar lahko poleti bolj zasenči stavbo.

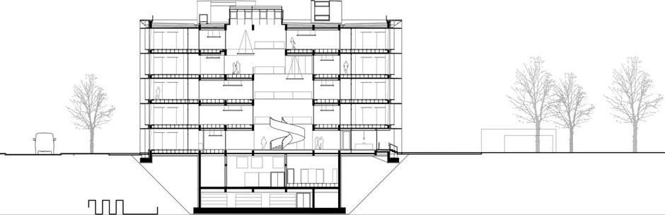
Sama notranjost ima obliko kocke, ki je na sredini od tal do stropa. Ta notranji atrij služi tako za notranjo osvetlitev kot nekakšen 'dimnik', prek katerega z naravnim vzgonom termoregulirajo odvajanje in dovajanje zraka skozi stropne reže. Gre za avtonomen avtomatiziran sistem, ki se bo prvo leto še 'učil', kako poskrbeti za največjo učinkovitost in udobje.

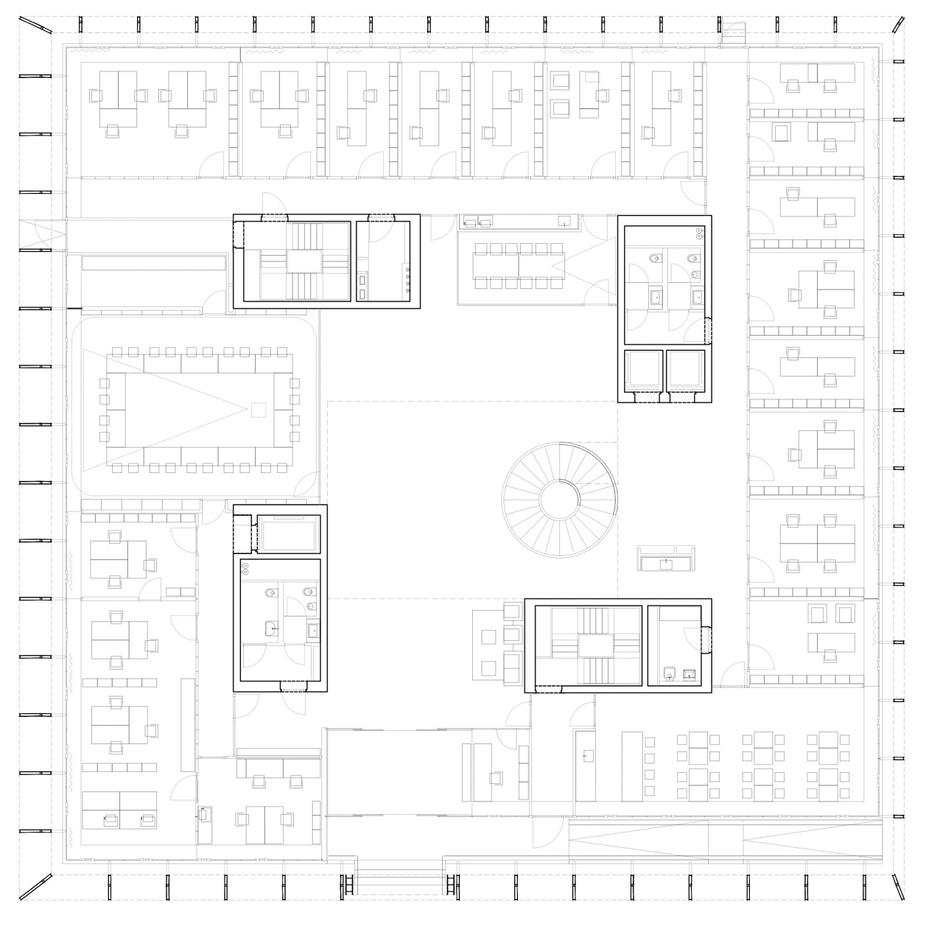
Pisarne so razporejene po obodu kocke v nadstropjih, večji skupni prostori, sejne sobe ter govorilnice pa so v notranjem delu med štirimi komunikacijskimi in konstrukcijskimi jedri. V prvo nadstropje, kjer domuje uprava, vodi polževo stopnišče.

Skupno stavba v petih etažah in z dodatno podkletitvijo meri več kot 14 tisoč kvadratnih metrov. Dokončno podobo bo stavba dobila z ozelenitvijo parka pred stavbo, ki ima tudi manjši vodni bazen.

Dars, Tiskovna konferenca Darsove uprave predstavitev rezultatov in dela | Avtor: Andrej Leban Andrej Leban
Dars, Tiskovna konferenca Darsove uprave predstavitev rezultatov in dela | Avtor: Andrej Leban Andrej Leban

andrej.leban@styria-media.si

Komentarjev 7
  • Vanessaey1758 23:19 18.junij 2025.

    🍓 Vroča dekleta čakajo na vas na 👉 𝗦𝗲𝘅𝘁𝗼.𝗹𝗶𝗳𝗲

  • Colmenna 23:44 01.marec 2025.

    Samske ženske čakajo na vas na -- Sexy24.mom

  • jakec1575 22:21 01.marec 2025.

    kaksno grdo monstrum stopnisce. zasede ves prostor.

Sorodne novice